全国装修热线
400-9617-001
海员之家(实景)
浏览人数: 145 次    更新时间: 2025-12-31 11:05:05
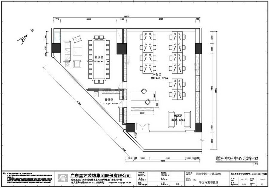
案例风格 :现代简约 案例户型 :公装 案例面积 :185平米
设计理念
MAVEGA GROUP 是一家船舶经纪为主营业务的英国企业,中国区负责人Tiger希望给与办公空间一个符合行业属性的定位,时差原因办公时间会直至深夜,整个办公空间对于员工以及客户的一个娱乐性、舒适性及其重要,办公空间按照”家”的属性要求,给予了更多的可能性,整个项目只分为两个大空间,大开放没有等级区分的办公区域、水吧、极具关怀的零食柜都能完美诠释Tiger对于办公生活的特殊要求,另一个空间具有会议和接待功能,昨天仍在海上乘风破浪的船长也许今天和Tiger一起慵懒在MAVEGA的沙发一起品味勃艮第的红酒。Tiger的空间期待得到完整的呈现,设计本是设计师与甲方共同的作品,使得不同行业、不同认知的个体趋于融合统一。
本案例设计师
陈文辉
总监设计师

所在城市: 广州市

案例数: 20

本案例服务店面
广州公司
所在城市: 广州市  |  案例数: 1426
装成这样需要多少钱 ?
  • 价格保障
  • 流程保障
  • 设计保障
  • 环保保障
  • 施工保障
  • 售后保障
  • 权益保障
关注我们
  • 集团小程序

  • 集团公众号

  • 移动端官网

全国装修热线
400-9617-001
时间:周一至周五 9:00-17:30
全国售后热线
400-6885-085
时间:周一至周五 9:00-17:30
广东省广州市番禺区洛浦街上漖段90号华南商业城
我家装修多少钱?
现已累计有 103250 位业主获取报价
新房装修
高品质毛坯装修,旧房、二手房改造
*为了您的权益,您的一切信息将被严格保密
预约参观工地
看看别人家怎么施工的
信息保护中
请放心填写
*将有工作人员与您联系,提供专属服务
预约全屋装修
量身定制理想家
信息保护中
请放心填写
*将有工作人员与您联系,提供专属服务
免费量房
全面精准测量 合理规划户型空间
信息保护中
请放心填写
*将有工作人员联系,确认量房时间
免费提供户型规划方案
多种设计风格任您选择
信息保护中
请放心填写
*将有工作人员与您电话联系,安排设计师
算一算,你家装修要花多少钱?
免费获取装修报价
预约设计师
预约设计师,定制您喜欢的设计方案
信息保护中
请放心填写
客户报修
今河环保科技  卓力天成广告  中高档男士内裤厂家  中国拍卖网门户  海讯传媒  一鸣天下信息技术  微主页  荣行房地产经纪事务所  万利隆睡衣批发中心  嘉兴市刘氏轴承